ГЛАВНАЯ
О НАС
Портфолио
Услуги
ASQ INTERIORS
КОНТАКТЫ
ПОРТФОЛИО
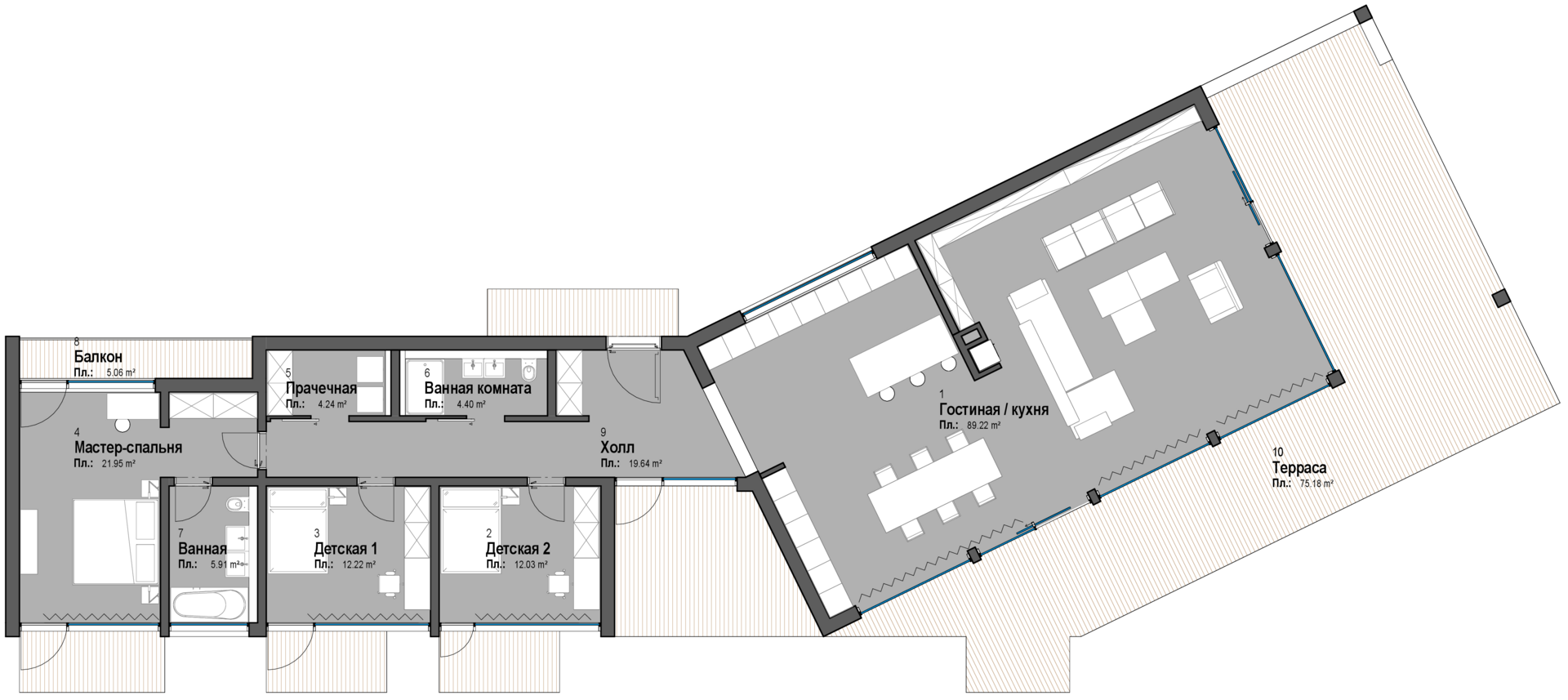
Общая площадь дома - 174.67 м2
Екатерина Валерьевна Никулина
Политика конфиденциальности
Согласие на обработку персональных данных
© 2026