ГЛАВНАЯ
О НАС
Портфолио
Услуги
ASQ INTERIORS
КОНТАКТЫ
ПОРТФОЛИО
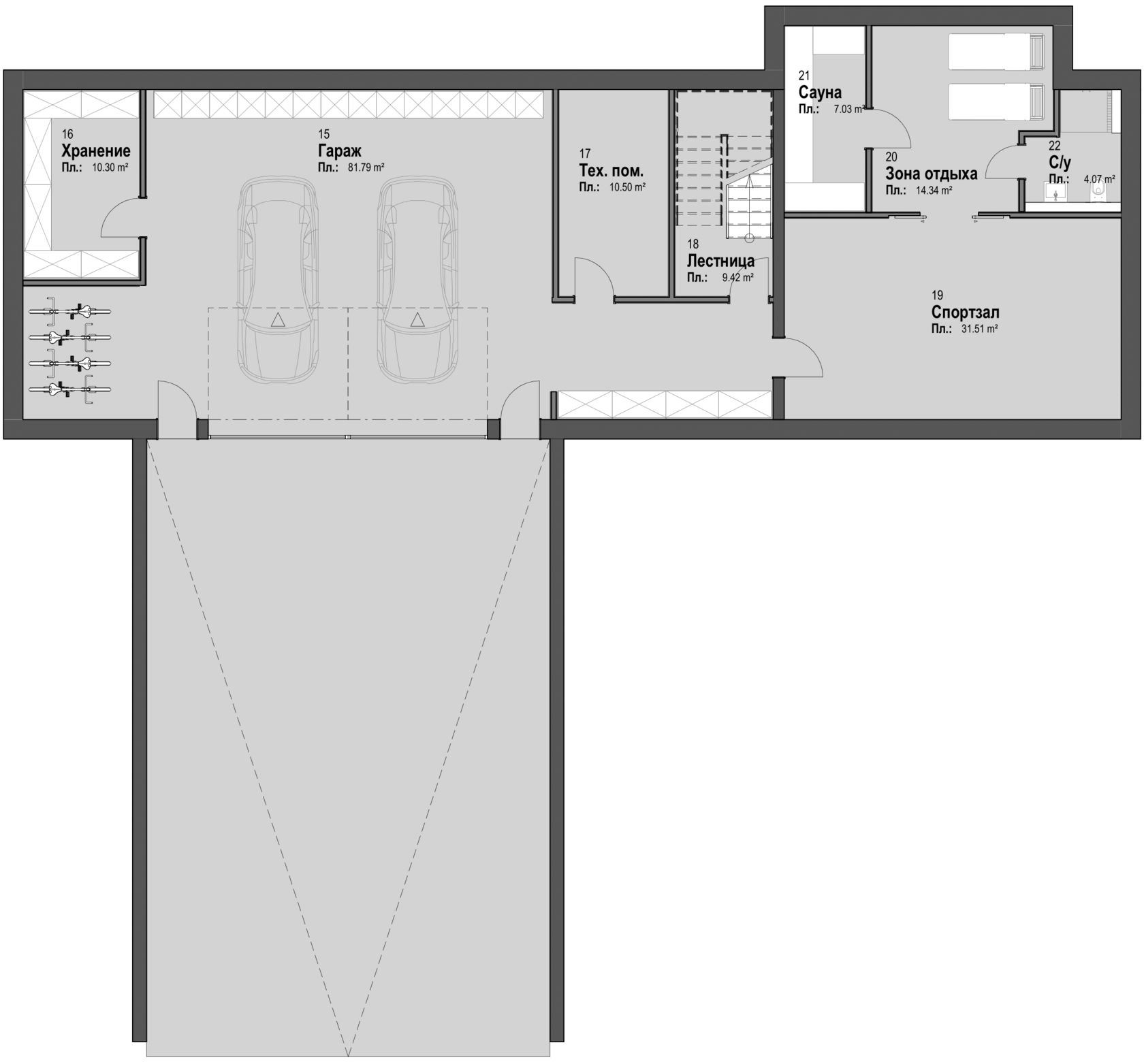
Общая площадь дома - 410.77 м2:
1 этаж - 241.81 м2
подвальный этаж - 168.96 м2
Екатерина Валерьевна Никулина
Политика конфиденциальности
Согласие на обработку персональных данных
© 2026